查看完整版本: [-- 陕西西村东社 / 寻常工作室[36P] --]

武当休闲山庄 -> 无奇不有 -> 陕西西村东社 / 寻常工作室[36P] [打印本页] 登录 -> 注册 -> 回复主题 -> 发表主题

jjybzxw 2025-10-19 09:09

融古汇今的当代合院
▼西村东社鸟瞰 ©李逸

▼入口大门 ©李逸

▼宅园合一的院落空间 ©李逸

缘起
在中国快速城镇化的进程中,村老宅改造已超越了单纯的居住功能升级,成为承载乡愁记忆、激发乡村活力的重要载体。位于黄土高原边缘的“西村东社”项目,正是这一转型的代表。业主作为一位长期在长三角地区创业的企业家,给老宅重建赋予了双重定位:不仅是留守家乡老人的日常居所;也是家族返乡时亲朋团聚的共同情感载体。将项目命名为“东社”,而非普通的屋舍,正是为了延续对传统村落的精神记忆。
▼位于西村最东端的西村东社 ©李逸

项目背景与挑战
本项目位于黄土高原边缘的一座四线城市城郊村庄的最东缘,宅基地是占地1.2亩的平行四边形,南北高差达4.5米,南北侧均有道路连通。场地内的三孔土窑及北院的现已坍塌土坯房,承载着深厚的历史记忆。
▼场地原貌 ©寻常设计工作室

▼原有院墙与院门 ©寻常设计工作室

设计面临三大挑战:一是当地掌握传统木作工艺匠人的缺失,导致业主最初希望建设的木构四合院无法实现;二是业主对江南园林与西北窑洞怀有双重文化情结,需实现二者的融合;三是地形高差与邻里关系带来的场地约束,要求建筑既有独特品位,又不至于在村庄中显得过于突兀。如何以“古今融合、南北对话、场地应答”为设计策略,实现建筑的在地性创新,成为了项目的设计考量。
古今融合:现代转译中的传统基因
项目的设计核心在于“古今融合”, —— 既采用现代结构技术的同时,延续传统空间逻辑。面对当地传统木作工艺的缺失的问题,建筑主体结构用当地施工队能熟练操作的“混凝土框架 + 砖混”组合形式;门窗、连廊等构件则交由工厂定制、安装。这相当于把 "大木做" 交给本地工匠,"小木做" 通过工业化生产补齐短板,借助可控的细节保证整体品位。
由于标准传统合院的构想难以实现,设计转而采用北方三进合院的传统基因进行演绎。结合4.5米的地形高差展开布局。
▼由传统空间到现代空间的转译 ©寻常设计工作室

▼建筑的实体空间与院落组合 ©李逸

第一进是入口空间。由门厅、照壁和茶室通过连廊围合而成,透过照壁顶端可见一线天光,形成“过白”效果,以小见大;半开放的形式化解了空间沉闷感,在开放与围合之间暗喻了传统空间的构建趣味。
▼第一进院落与照壁 ©李逸

▼门厅对望茶室 ©寻常设计工作室

第二进为主体院落。包括二层的居住建筑、会客厅、宴会厅等功能空间。设计在空间与功能布局上打破 “宅园分离”的传统,将住宅与园林充分融合。承担接待功能的会客厅、宴会厅均作为单体建筑设置,经由连廊与门厅相连,形成对相对独立的对外接待功能空间。同时与居住空间共同享有庭院景观。
▼第二进院落中的主楼、会客厅与宴会厅 ©李逸

▼宴会厅看向会客厅 ©寻常设计工作室

▼从爬山廊看向宴会厅l ©李逸

▼宴会厅 ©李逸

▼主楼一层的早餐厅与厨房 ©李逸

第三进则安排子女房,家务院,以及与北部道路连通的停车院落,灵活应对现代生活需求。
同时,在主体院落的东西两侧各增加了一条由院落、连廊组合的通行空间,连通纵列的三进主体院落,形成了“三进三路”的空间结构。通过这一布局,项目不仅保留了传统合院“渐次递进”的空间感,还融合了现代生活的流动性和功能性。
▼后院 ©李逸

▼主楼北侧的家务院 ©李逸

▼连接主院与后院的爬山廊 ©寻常设计工作室

▼连接车库与后院的杂务院与通道 ©寻常设计工作室

南北对话:文化记忆的空间叙事
本项目不仅是建筑空间的融合探索,也通过建筑语言承载了江南与西北的文化记忆。设计借助空间分区,将业主的双重文化情结转化为可感知的建筑形式,实现了南北地域文化的对话融合。
在前院,设计借鉴江南园林的空间要素,将会客厅、宴会厅与茶室拆分成三个独立建筑单元,对应“轩”“榭”“角亭”的意向,再借由连廊系统将它们连接,形成“风雨无阻”的通行网络。连廊采用钢结构与金属铝板代替传统木构,通过工业化的制作与安装确保细节的精巧。连廊体量虽不大,却融合了单廊、复廊、爬山廊等形式,构建出丰富的天井空间。场地内原有一口水井,位于照壁北侧。业主希望将其保留,作为景观水景的水源。尽管当地气候条件不太适合设置大面积的水景,但是在业主的坚持下,最终还是保留了浅水面。并对给排水管采用深埋加保温的措施。设计在尽量缩小水面面积的前提下,参考传统园林的“理水”手法,结合到当地施工条件简化了驳岸做法。在水面形态上营造“窄溪扩池”“溪池相连”的意向。形成“溪”“池”“涧”的组合效果。且在整个场地中,无论站在任何位置都无法将水景尽收眼底,以此形成小中见大的意境。多样设计手法的结合,让江南元素在西北环境中获得了全新表达。
▼江南传统园林空间在场地内的转译 ©寻常设计工作室

▼主楼、会客厅与宴会厅的院落空间 ©李逸

▼宴会厅与照壁间的庭院空间 ©李逸

▼门厅,茶室之间的折廊 ©李逸

▼源于传统园林中水榭、洞门的宴会厅与敞廊空间 ©李逸

▼主楼与会客厅之间的爬山廊与假山借鉴了传统园林中堂前假山的构筑手法,成为两幢建筑间的障景与对景 ©李逸

▼车库通向宴会厅的折廊、美人靠与漏窗,体现了传统园林的空间趣味 ©寻常设计工作室

后院则聚焦黄土高原在地记忆,从三方面展开:一是保留 “层层叠叠”的窑洞形态意象,建筑剖面随地形自然抬升,营造出类似山地窑洞的空间体验;二是采用当地施工队伍稔熟的“草泥灰”外墙工艺,并通过拱形门窗的设置强化了地方文化的叙事层次;三是在后院空间比例与尺度的控制上,着力再现西北民居“高屋敞院”的空间记忆。在纵剖面的尺度设计上,确保冬季时每一处建筑都能沐浴在阳光之中,既适配地方气候需求,也贴合生活实用场景。
▼后院的空间尺度与建筑材料体现了北方建筑的文化基因 ©李逸

▼高踞台地的后院建筑 ©寻常设计工作室

▼连接爬山廊与后院的露台天井空间 ©寻常设计工作室

场地应答:地形与文脉的共生策略
本项目的另一大特点在于对地形的适应性利用。项目拒绝大规模平整场地,而是将4.5米的高差转化为空间优势:顺应地势布置的第三进院落,借助室内外的复合交通与家务院的组合不仅化解了高差还强化了传统院落的递进仪式感;此外,第三进院落直接连通场地北侧外部道路,院内还预留临时停车位,业主可以通过自由阶梯与一层家务院、东侧车库杂务院的通道连接,既增加了实用功能,又与周边现有建筑的尺度相互协调。
在材料策略上,项目坚持“就近取用、创新组合”的原则,采用当地生产的加气块与黏土砖,减少运输成本。围墙则以村中常用的青色面砖为基调,但避免使用釉面砖,改以陶土砖,并结合水泥抹灰压顶与墙裙处理。此举既呼应了在地环境,又在细部工艺中实现了品质感的提升。项目中采用传统方法制作的榆木大门,其温润的色彩在八字墙内花岗岩门套的衬托下显得质朴典雅;院墙的八字门设置,延续了场地原有的记忆。院子内的园林铺地,也由当地师傅用本土材料,依据设计提供的图案灵活打造,既有传统园林中的 “花街铺地”,也有结合当地材料与工艺的碎石片铺地,还有目前当地开始出现的机加工碎拼地砖;局部青砖花格栏杆则完全由当地师傅按照传统方法砌筑,传统工艺与现代玻璃栏板衔接,呈现出有趣的融合效果。
作为村落肌理的有机组成部分,项目在体量控制与界面融合上充分考虑周边环境:建筑高度控制在两层以内,与周边民居保持一致;围墙顺应地形逐渐升高,南侧与邻居齐平、北侧适度降低,在保障私密性的同时避免视线阻隔,通过体量与界面的综合调控,实现了与村落肌理的有机融合。
▼采用陶土面砖的院墙与榆木院门的八字门楼 ©李逸

▼主楼北侧家务院与后院高台连接的楼梯通道 ©李逸

▼连接车库与回廊的门厅前采用了花街铺地 ©寻常设计工作室

结语
西村东社项目是通过“古今融合、南北对话、场地应答”的设计策略,在当代乡村建筑改造的一次尝试。项目不仅在低技术建造的现实中引入传统空间的意趣,还通过功能空间的推敲与组合,回应了地域文化的需求。这种“限制条件下的创造性转化”策略证明,设计的价值在于精准提取地域与文化基因,并进行当代转译,从而适配现实需求。
▼总平面图 ©寻常设计工作室

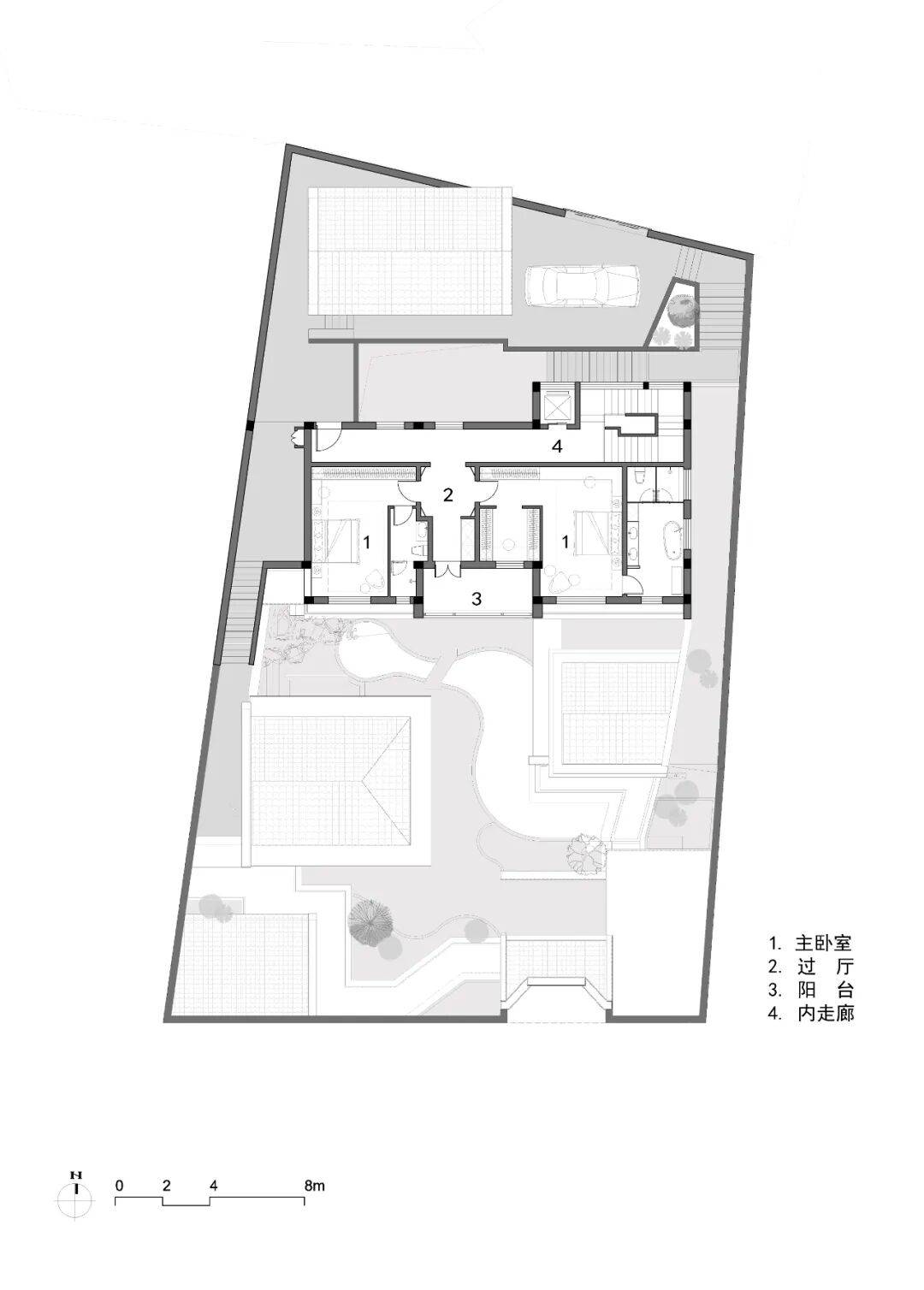
▼一层平面图 ©寻常设计工作室

▼二层平面图 ©寻常设计工作室

▼剖面图 ©寻常设计工作室

项目名称:西村东社
地点:陕西 西村
建筑设计:寻常工作室
主创设计:汤里平
设计团队:陈静、陈剑、朱晓亮 赵小飞
设计时间:2023年10月
建成时间:2025年1月
建筑面积:480㎡
建筑摄影:李逸
类型:建筑设计、景观设计、室内设计 、村民自宅混凝土、砌块、金属、玻璃
分类:中国乡建 自宅改建

jjybzxw 2025-10-19 09:10
融古汇今的当代合院:西村东社的实践与启示

项目概述
西村东社项目位于黄土高原边缘的一座四线城市城郊村庄,是业主(一位长三角企业家)为家乡老人及家族团聚打造的复合型居所。项目占地1.2亩,场地呈平行四边形且存在4.5米南北高差。设计以“古今融合、南北对话、场地应答”为核心策略,将传统合院空间逻辑与现代生活需求、江南园林意趣与西北窑洞记忆相结合,创造出既扎根地域又面向当代的居住空间。

设计缘起与背景
城镇化背景下的乡愁载体
在中国快速城镇化进程中,老宅改造已超越居住功能,成为承载乡愁记忆、激发乡村活力的重要途径。西村东社的命名本身即是对传统村落“东社”记忆的延续,旨在构建一个兼具日常居住与情感团聚功能的空间。

场地挑战与机遇
- 地形高差:4.5米南北高差带来空间组织难题,但也为“三进三路”布局提供了天然条件。
- 工艺缺失:当地传统木作匠人匮乏,迫使设计转向“混凝土框架+砖混”为主体、“小木作工业化定制”的混合建造方式。
- 文化情结:业主对江南园林与西北窑洞的双重偏好,需在有限场地内实现文化融合。

核心设计策略

一、古今融合:传统空间逻辑的现代转译
1. 结构与建造的平衡
   - 主体采用本地施工队熟悉的“混凝土框架+砖混”结构,确保建造可行性。
   - 门窗、连廊等精细化构件通过工厂定制安装,弥补传统工艺短板。例如连廊采用钢结构与金属铝板,替代传统木构,既保证精度又适应现代生活需求。

2. 三进院落的空间演绎
   - 第一进(入口空间):由门厅、照壁、茶室及连廊围合,形成“过白”效果。半开放设计通过天光引入和空间渗透,营造“以小见大”的传统意境。
   - 第二进(主体院落):包含二层居住建筑、会客厅、宴会厅。打破“宅园分离”,将接待功能独立设置并通过连廊连接,实现居住与社交空间的融合。
   - 第三进(后院):安排子女房、家务院及停车院落,灵活应对现代生活需求。东西两侧增设通行连廊,形成“三进三路”的复杂空间结构,强化传统合院的递进感。

二、南北对话:文化记忆的空间叙事
1. 前院:江南园林的在地化表达
   - 借鉴江南园林“轩、榭、角亭”意象,将会客厅、宴会厅、茶室拆分为独立单体,通过复廊、爬山廊连接。连廊采用工业化材料,却通过曲折布局营造传统园林的“步移景异”。
   - 引入水景元素:保留场地原有水井,打造“窄溪扩池”的理水效果。虽受限于气候缩小水面,但仍通过“溪涧相连”的手法营造小中见大的意境。给排水系统采用深埋保温措施,适应北方寒冷气候。

2. 后院:西北窑洞文化的现代转译
   - 地形适应:建筑剖面随4.5米高差自然抬升,形成类似山地窑洞的“层层叠叠”空间体验。
   - 材料选择:外墙采用当地“草泥灰”工艺,搭配拱形门窗强化地域特征;后院空间尺度控制再现西北民居“高屋敞院”的记忆。
   - 气候适配:纵剖面设计确保冬季各建筑均能获得充足日照,既实用又贴合地方生活习惯。

三、场地应答:地形与文脉的共生策略
1. 高差利用与交通组织
   - 第三进院落直接连通北侧道路,预留临时停车位。通过室内外复合交通(如自由阶梯、爬山廊)化解高差,强化传统院落的递进仪式感。
   - 家务院与东侧车库通道的设置,提升了实用性并与周边建筑尺度协调。

2. 材料与工艺的在地性创新
   - 就近取材:采用当地加气块、黏土砖,减少运输成本。围墙选用陶土面砖(替代釉面砖),结合水泥抹灰压顶,提升品质感。
   - 传统工艺现代化:榆木大门与花岗岩门套结合;青砖花格栏杆与现代玻璃栏板衔接;地面铺装融合“花街铺地”与本土碎石片铺地,展现传统与现代的碰撞。

3. 体量控制与村落融合
   - 建筑高度控制在两层以内,与周边民居保持一致。围墙随地形变化高度,在保障私密性的同时避免视线阻隔,实现与村落肌理的有机共生。

细节亮点
- 连廊系统:融合单廊、复廊、爬山廊等多种形式,如宴会厅至主楼的爬山廊不仅解决高差问题,还成为重要的观景路径。
- 照壁设计:透过照壁顶端的一线天光形成“过白”效果,以极简手法暗示传统空间的深远意境。
- 水景处理:在寒冷地区保留水景的尝试,通过技术手段(深埋保温管道)实现文化符号的在地化落地。

结语:限制条件下的创造性转化
西村东社项目通过“古今融合、南北对话、场地应答”的策略,在低技术建造条件下实现了传统空间意趣的当代转译。它证明了设计的价值在于精准提取地域与文化基因,并进行创造性转化以适配现实需求。该项目不仅是业主家族的情感载体,也为当代乡村建筑改造提供了宝贵经验——如何在尊重在地性的同时,注入新的生活活力与文化内涵。

正如文中所述,“限制条件下的创造性转化”是设计的核心价值。西村东社通过巧妙应对工艺缺失、文化融合、地形高差等挑战,最终呈现出一个既有黄土高原粗犷气质,又不失江南园林细腻雅致的居住空间,真正做到了“融古汇今”,让传统在当代生活中焕发新生。

---

该项目的成功实践,与近年来多个新中式合院项目(如天坛府·九阙、南通桃李春风苑、翠云熹园等)的理念不谋而合,均强调在传承传统文化基因的基础上,通过现代设计语言和技术手段,创造符合当代人生活方式的理想居所。这种“融古汇今”的设计思路,已成为中国当代建筑创新的重要方向。


姜谷粉丝 2025-10-19 12:47
(2025年发布,来源:亿个村),东社村位于陕西省宝鸡市凤翔区南指挥镇,是一个历史悠久、风景秀丽的村庄,具体信息如下:

地理位置:地处宝鸡市,毗连铁黄塬村、八一村、高庄村、马家庄村;
村庄特色:空气清新,村民友好好客,人杰地灵;
杰出人物:
刘别虎:北京农业大学毕业,畜牧师,现任国内几家龙头养殖企业总工程师;
刘晓明:工程师,陕西中金司法鉴定中心业务部主任;
撒春阳:乡镇企业大学毕业,工程师,经营管理数家公司。
二、“寻常工作室”信息
搜索结果中未找到与“寻常工作室”相关的内容(包括名称、地址、经营范围等),无法提供其具体信息。

备注
若“陕西西村东社”是“西村”与“东社村”的组合,搜索结果中未找到陕西西村的相关信息(仅提到成都西村, 提到广东西成村,均与陕西无关);若“寻常工作室”为特定机构


查看完整版本: [-- 陕西西村东社 / 寻常工作室[36P] --] [-- top --]


Powered by www.wdsz.net v8.7.1 Code ©2005-2018www.wdsz.net
Gzip enabled


沪ICP备:05041533号