查看完整版本: [-- 武汉麓客岛二号卫生间 / 变余构造(深圳)建筑设计[34P] --]

武当休闲山庄 -> 无奇不有 -> 武汉麓客岛二号卫生间 / 变余构造(深圳)建筑设计[34P] [打印本页] 登录 -> 注册 -> 回复主题 -> 发表主题

jjybzxw 2025-11-30 08:50


©存在建筑
从卫生间到驿站
近些年,工作室在各种竞赛与委托中设计了一系列的小型卫生间,他们都融合了或多或少的公共属性的功能(环卫工人休息室、附属用房、自动售卖空间等),卫生间这一空间母体也在不同的场合发生着变化,而在我们这次的设计中,前期甲方就提出了为麓客岛开产活动仓库的需求,并在后期由于其地理位置的优越性,将临时办公空间放置在了这里。公共卫生间日趋变成了小型综合公共基础设施,设计的维度在不断进行着拓展。


©存在建筑
草场浮廊-极致的屋顶
项目伊始,我们便提出了草场浮廊的概念,不仅是对于之前卫生间设计经验的直觉性反应,也是对于麓客岛规划环境的回应,我们认为这个建筑应该是优雅立于草场上的一条的长廊,轻盈剔透。后期由于规划的改变,建筑场地被转移,卫生间变成了半覆土的状态,长廊也被抽象成了屋顶,并为了追求极致,将立面的屋顶展示面提炼成了一根直线。

第一版“草场浮廊” ©变余构造

场地更改,变为半覆土 ©变余构造

极致压缩屋顶 ©变余构造
我们对室内屋顶厚度上进行了变化处理,形成了从薄到厚的渐变,并露出了屋顶的钢板结构,支承天窗并形成韵律,吊顶设计成屋顶的整体,所有暖通设备藏于其中。在立面的处理上,我们做了双层立面,将近40m长的屋面的多根排水管藏在了里面。
剖面迭代,屋顶研究 ©变余构造
不锈钢、耐候钢与锈蚀铜
针对原6*6 米的框架柱网,木双梁系统被引入。每组木双梁贯通性地夹住混凝土柱列,建立起垂直于水院、连通U型内外的水平向空间秩序。

耐候钢屋顶室内效果图 ©变余构造

锈蚀铜屋顶室内效果图 ©变余构造

建成主立面 ©存在建筑



建成屋顶 ©存在建筑

建成屋顶 ©陈鸷飞

建成侧立面临时办公室入口 ©存在建筑

建成屋顶半覆土场地 ©存在建筑
洞穴般的室内
考虑到半覆土的建筑姿态与武汉的炎炎夏日,地穴自然而然成为了我们对于建筑室内的想象。烈日中走入地穴的舒爽凉风是对抗江城火炉炎热的最好武器。但后期处于成本以及维护的考虑,以粗粝且深沉的的仿石涂料为主材的室内被替换成为了颜色相对较浅的饰面碳晶板,“深”地穴的意向被瓦解。天光中,饰面板,水磨石板、仿金属抗培特板的主材形成了别样的“浅地穴”。

入口等待区 ©存在建筑

公区走道 ©寇宗捷


女卫生间 ©存在建筑


男卫生间 ©存在建筑


第三卫生间 ©存在建筑

母婴室 ©变余构造
线性光
我们在建筑的长向设置了贯通整个建筑屋顶的天光,让阳光充分地洒在整个空间内,室内主要灯光的布置也沿着天窗的方向,与通长的风口一起强化了线性的形态,是为地穴上的无限天空。主要的室外灯光也是从地面向上打亮屋顶的出挑,在夜间形成一根长向的线性光带。





立面灯光 ©存在建筑
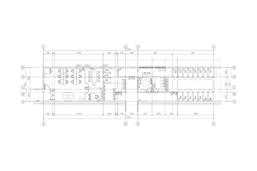
项目图纸

屋顶层平面图 ©变余构造

一层平面图 ©变余构造
1-4轴立面图 ©变余构造

A-E轴立面图 ©变余构造
E-A轴立面图 ©变余构造
1-1剖面图 ©变余构造
2-2剖面图 ©变余构造


构造细部 ©变余构造
项目信息
项目名称:武汉麓客岛二号卫生间设计
项目地址:湖北省武汉市江岸区谌家矶大道7—20号麓客岛
项目类型:公共建筑
完成年份:2025
建筑面积:295㎡
建筑设计单位:变余构造(深圳)建筑设计咨询有限公司
主创建筑师: 寇宗捷
设计团队:梁曦,杜楠,江宗水,宋吉来,刘璎仪,黄睿婷
业主:成都万华投资集团有限公司
业主设计管理:罗希,梁馨尹,梁家豪、周筱雅(麓湖文旅)
室内设计:变余构造
建筑施工单位:湖北天迈建设工程有限公司
外装施工图设计:四川中恒筑科勘测设计有限公司
建筑施工图设计:上海联创设计集团股份有限公司
景观设计:WTD纬图设计
灯光设计:变余构造
摄影师: 存在建筑、寇宗捷、陈鸷飞

jjybzxw 2025-11-30 08:51
©存在建筑工作室(Exist Architecture Studio)以其对空间本质的深刻理解与极简而富有哲思的设计语言著称。在面对“小型卫生间如何融合公共属性功能”这一命题时,该工作室往往超越传统功能划分的局限,将“私密性”与“公共性”之间的边界进行诗意重构。以下从五个核心维度展开深度解读,揭示其设计哲学中“小空间大社会”的实现路径:

---

一、空间边界的流动性重塑:打破“内/外”的二元对立

在传统认知中,卫生间是高度私密的空间,而公共属性则指向开放、共享与社交。©存在建筑工作室通过模糊物理与心理边界,使小型卫生间成为连接个体与集体的“阈限空间”(Liminal Space)。  
- 视觉穿透性设计:采用磨砂玻璃、镂空隔断、半高墙或镜面反射,使光线与视线部分渗透,既保障基本隐私,又暗示外部环境的存在,形成“被看见却不被凝视”的微妙状态。  
- 动线交织策略:将卫生间的入口嵌入公共走廊或庭院路径中,使其成为空间序列的一部分,使用者在进出之间自然参与公共生活的节奏,如京都某茶室项目中,洗手间位于回游式庭院动线上,访客在休憩途中不经意经过,形成“偶遇式公共性”。

---

二、功能复合化:从“单一用途”到“微型公共设施”

小型卫生间不仅是排泄与清洁之所,更被赋予社区服务、文化展示与情感交流的潜能。  
- 嵌入式公共服务节点:在住宅底层或社区转角的小型卫生间中,增设饮水台、信息公告栏、应急药箱或小型书架,使其成为城市毛细血管中的“微型驿站”。例如东京巷道项目中,一个仅4㎡的卫生间外侧设可旋转书匣,居民可自由取阅或捐赠书籍。  
- 仪式感营造:借鉴日本“手水舍”(Temizuya)的精神原型,将洗手动作升华为净化与冥想的仪式,配以天然材质、流水声与植物,吸引路人驻足体验,从而转化为一种公共精神场所。

---

三、材料与感官的共情设计:构建共享的情感场域

公共性的本质在于“共鸣”。工作室通过材质选择、光影控制与声音设计,激发使用者共同的感官记忆与情绪共振。  
- 使用本地石材、再生木材或手工陶砖,传递地域文脉,使不同背景的人在同一触觉体验中产生归属感;  
- 利用天窗引入随时间变化的自然光,在墙面投下移动的光影诗行,让独处者感知“与世界同步的时间”;  
- 控制排水声、通风声的频率,避免刺耳噪音,反而营造如雨落屋檐般的白噪音环境,形成静谧的“公共冥想场”。

---

四、社会包容性介入:重新定义“谁可以进入”

真正的公共属性意味着可及性与尊严的平等。工作室在极小尺度中植入强烈的社会关怀:  
- 全龄友好与无障碍整合:通过折叠式儿童扶手、可变高度洁具、防滑地面等细节,使空间同时服务于老人、儿童与残障人士,体现“包容性公共空间”的伦理价值;  
- 性别中立设计:采用单间式布局(All-gender Toilet),消除性别标签,回应多元身份认同需求,在校园或文化中心项目中尤为凸显其社会前瞻性。

---

五、生态循环系统:作为“公共责任”的物质表达

将卫生间视为资源循环的起点,而非污染源头,是其公共属性的深层体现。  
- 雨水收集用于冲厕,黑水经生态湿地净化后灌溉屋顶花园;  
- 展示水处理流程的透明管道或信息图解,使使用者直观理解自身行为与环境的关系,激发环保意识——这种“教育性公共功能”使空间超越实用,成为可持续理念的传播载体。

---

结语:在“最小单元”中孕育“最大公共性”

©存在建筑工作室的小型卫生间设计,实为一场关于空间正义、人文关怀与生态伦理的微型革命。它不追求物理上的扩张,而是通过诗意的技术、深刻的洞察与克制的形式,将最私密的空间转化为连接人与人、人与自然、人与社会的枢纽。在这种设计中,“公共性”不再是规模的产物,而是意图的结晶——在一个仅数平方米的空间里,照见整个世界的温度与秩序。

fzw999 2025-11-30 08:57
这个卫生间设计的不错,地下室


查看完整版本: [-- 武汉麓客岛二号卫生间 / 变余构造(深圳)建筑设计[34P] --] [-- top --]


Powered by www.wdsz.net v8.7.1 Code ©2005-2018www.wdsz.net
Gzip enabled


沪ICP备:05041533号