





© UK Studio
在北京顺义,中粮·祥云小镇凭借其开放的街区形态、花园式的购物环境和丰富的四季主题活动,吸引着源源不断的人潮。然而,就在这个充满活力的商业社区北区主入口,9号楼却面临着一个尴尬的困境:地面层人声鼎沸,二层及以上商业空间却人流不佳。这引出了一个在商业建筑改造中极为关键的议题——当建筑的”面子”成为商业活力的”障碍”时应该如何应对?设计的价值不仅在于美化,更在于通过精准的干预,重新激活空间的商业生命力。
9号楼占据着北区入口的绝佳位置,是整个小镇人流的必经之地。然而,其原有的建筑立面却存在着致命缺陷:一道巨大的装饰性幕墙,导致了三个核心问题:① 商铺无露出,二层以上的店铺被完全遮挡,毫无商业可见性;② 人流被遮挡,消费者的视线无法穿透幕墙,无法感知楼上的活动与路径;③ 无法辨识入口,垂直交通被隐藏,上楼的欲望被彻底压制。这些问题共同导致了楼上商业经营惨淡,形成了一个与周边活力格格不入的”商业死角”。

▲晨间阳光下的正立面© UK Studio
拆除即建造
起初,我们接到的设计任务,是针对这堵装饰幕墙的设计工作。但是经过现场的感受和分析,我们认为,问题的根源是”遮蔽”,而非形态。因此,我们提出”先拆除,后激活”的核心策略。

▲改造后立面全景© UK Studio
我们选择拆除整面装饰幕墙,这一动作本身即是一种建造——它将“遮蔽”转化为“暴露”,为真正的激活创造了先决条件。拆除之后,我们引入了一系列新的设计元素,旨在重新建立地面与高层商业的物理与情感连接。

▲改造前建筑状况© SA Architects

▲改造策略分析图© SA Architects
台阶即邀约
建筑前方的喷泉广场是孩子们的乐园,但家长们却缺乏一个舒适的休憩和看护区域,活动的人群也缺乏临时休憩停留的区域。因此,我们改造扩大了原有利用率低下的楼梯,改造成为宽阔的、面向广场的大台阶。它不再是纯粹的交通构件,而是一份空间主动发出的“邀约”,邀请人们停留、坐下,并自然地引导视线与脚步向上探索。家长们可以惬意地坐在这里,视线毫无遮挡地照看在喷泉中嬉戏的孩子,解决了公共空间中的一个具体痛点。
▲大台阶前后对比轴测图© SA Architects

▲社交空间激活© UK Studio

▲阶梯花园© UK Studio

▲空间形成向上引导的氛围© UK Studio

▲夜晚的大台阶© UK Studio
立面即舞台
在各层,设计增设了外挑的平台,作为休息和拍照的”打卡点”,同时也成为广场与楼上相互对望的观景台。这些外挑的平台,将原本平面的建筑‘界面’转化为一个上演着城市生活的立体‘舞台’,让楼上楼下的人们相互观看,共同构成了一幕幕生动的公共戏剧。为了呼应祥云小镇”花园式”的商业氛围,我们将绿植作为重要的设计元素,贯穿于整个立面。在各层平台精心布置花池和树木,不仅软化了建筑硬朗的线条,更将地面层的自然气息垂直向上延伸,创造出一个多层次的、充满生机的空中花园。
▲垂直界面改造前后对比轴测图© SA Architects

▲台阶和悬挑平台© UK Studio

▲广场与平台的对望© UK Studio

▲混凝土盒子© UK Studio
为了呼应祥云小镇”花园式”的商业氛围,我们将绿植作为重要的设计元素,贯穿于整个立面。在各层平台精心布置花池和树木,不仅软化了建筑硬朗的线条,更将地面层的自然气息垂直向上延伸,创造出一个多层次的、充满生机的空中花园。.

▲与绿植结合的大台阶© UK Studio

▲立体绿化与灯光© UK Studio

▲悬挑平台上的种植池© UK Studio

▲混凝土与绿植 © UK Studio
停留即激活
设计将二层连廊从纯粹的通行空间,转变为可停留的社交节点。为此,我们增加了功能性雨棚。其悬挑的姿态首先增强了对地面人群的视觉昭示;其次,它遮阳避雨的功能,结合栏板边的木质吧台,鼓励人们在此停留、喝杯咖啡、俯瞰广场。因为我们相信,真正的活力源于人们停留的意愿,而非简单的人流。这些停留、交谈、观望的人们,本身就构成了最生动的立面表情,成为了吸引楼下顾客的动态风景。

▲改造流程BIM轴测图© SA Architects

▲阳极氧化铝雨棚与混凝土的对比© UK Studio

▲雨棚塑造停留空间和视觉昭示© UK Studio
仰望即向往
我们认为,天花的设计不应仅仅是功能性的,更应是情感性的。它需要将地面人群的视线从水平的广场,引向垂直的建筑深处,将简单的“看见”升华为内心的“向往”。为此,我们采用了一体化的格栅策略:在顶层,优雅的弧形格栅一举三得,既解决了玻璃顶棚显脏和暴晒的问题,阳光通过格栅渗入,创造戏剧化的光影氛围;在各层走廊,漫反射发光的格栅吊顶对内为行人创造了柔和的光环境,对外,这柔和而连续的光线,不是强硬的指引,而是一种激发好奇与向往的暗示。

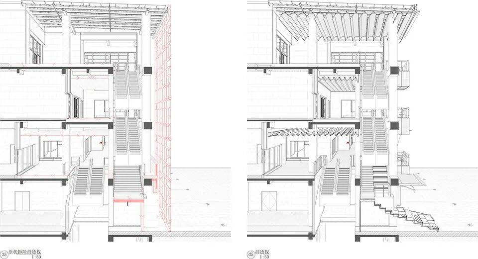
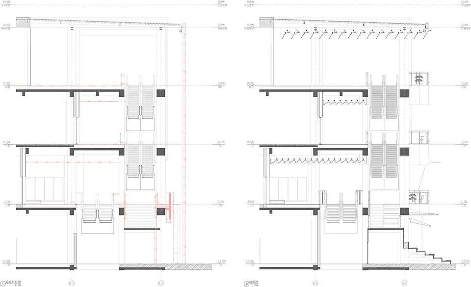
▲剖透视图© SA Architects

▲漫反射发光天花© UK Studio

▲夜晚从广场看向二层走廊天花© UK Studio

▲四层天花变换的灯光效果© UK Studio
通过”拆除-暴露-诊断痛点-精准植入”这一系列连贯动作,我们将设计的重点从单纯的立面美化,转向对场地精神、消费行为和用户体验的直接回应。

▲广场入口视角© UK Studio
改造后的9号楼,以一种全新的、开放的姿态重新融入祥云小镇的公共生活。拆除幕墙后,建筑内部的商业活动、人流和灯光被完全释放,共同构成了一幅充满活力的、层次丰富的立面图景。

▲夜景标识与灯光© UK Studio
新立面的材质语言冷静而克制,以浅灰色混凝土作为基底,但在关键的互动界面则介入了阳极氧化铝等精致的金属质感。纤细的金属拉杆支撑着外挑的遮阳棚,使其在视觉上显得格外轻盈。精心布置的绿植花池作为”垂直花园”的载体,点缀在各层平台之上,树影婆娑,不仅为建筑注入了生机,更将小镇的自然气息垂直向上延伸。

▲多层次空间的社交活力© UK Studio
首层的大台阶成为了广场的自然延伸和”城市看台”,吸引着人们在此停留、聚集并向上探索,孩子们的欢笑声与家长们闲适的身影交织在一起,充满了生活气息。二层及三层的”打卡平台”因功能雨棚的加入而更具活力,人们愿意在栏板边的吧台小坐,喝杯咖啡,俯瞰广场上的热闹景象。这些停留、交谈、观望的人们,本身就构成了最生动的立面表情,吸引着更多地面游客的好奇心。

▲夜间在大台阶上休憩的人© UK Studio
夜幕降临,多层次的灯光系统被激活。统一的顶棚策略在此刻展现出全部魅力:各层走廊的发光吊顶提供了柔和的主照明,与隐藏在扶手下方、平台边缘的线性灯带共同勾勒出建筑的温暖轮廓;而在顶层,弧形格栅在灯光下也呈现出与白天不同的质感,共同为整个建筑加冕。


▲夜晚台阶的效果© UK Studio

▲细部© UK Studio
通过设计的干预,9号楼从一个消极的”商业死角”,转变为一个吸引人流向上、充满互动与活力的”垂直客厅”。它不再是一个沉默的建筑,而是一个与广场、家庭和阳光持续对话的开放舞台。
项目图纸

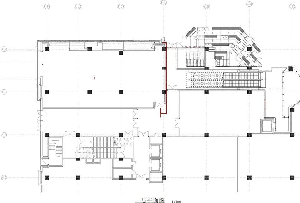
▲一层平面图© SA Architects

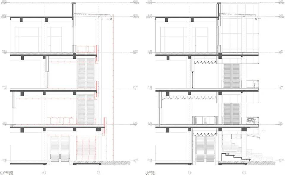
▲建筑剖面图1© SA Architects

▲建筑剖面图2© SA Architects
项目信息
项目名称:中粮·祥云小镇Courtyard改造更新
设计公司:申江海建筑师事务所
客户:中粮地产投资(北京)有限公司
设计团队:申江海, 张龙潇, 史昊阳, 具志坚强、孙春迪
建筑施工图单位:北京天鸿圆方建筑设计有限责任公司
幕墙及灯光顾问:英海特工程咨询有限公司
植物设计及实施:荒野造景设计工作室
项目类型:建筑改造
建筑面积:1800㎡
设计时间:2024年3月-2024年10月
建造时间:2025年2月-2025年8月
项目摄影:UK Studio
撰文:张龙潇