切换到宽版
  • 5阅读
  • 1回复

[奇观]宁波童第周实验学校 / c+d设计中心[41P] [复制链接]

上一主题 下一主题
在线jjybzxw

UID: 551814

 

发帖
211643
金币
609434
道行
2006
原创
2438
奖券
3260
斑龄
41
道券
1197
获奖
0
座驾
设备
摄影级
在线时间: 46390(小时)
注册时间: 2008-10-01
最后登录: 2025-12-17
只看楼主 倒序阅读 使用道具 楼主  发表于: 4小时前

01.
背景与基地条件
项目规模与定位
项目位于浙江省宁波市鄞州区前殷区块,场地北至潘火大道,南侧紧邻城市绿带及甬台温高速路,西侧为景观水系及金达北路,东侧为地铁上盖住宅区。该项目分为两个地块,项目总用地面积93427㎡。其中1,拟建一个48班的初中,2,拟建一个60班的小学。两个地块规划容积率均为0.9。

▲东北角鸟瞰

▲东南角鸟瞰

▲小学部沿街透视

▲中学部沿街透视
基地约束条件
与常规校园设计相比,本项目主要面对三大挑战:一是地铁出入场线东西向横穿校园,将原本两个地块分成四个碎片化区域,涉及结构避让、振动隔离与安全防护问题;二是由于建设场地需避让地铁出入场盾构线,造成可用场地极度紧缩与高容积率(实际容积率为1.3)要求的矛盾;三是中间城市道路横亘于中小学之间,需解决物理隔离与使用功能联动问题。

▲场地规划条件
02.
设计策略
地铁咽喉区的适应性布局
在满足地铁咽喉区与学校同步建设的复杂要求下,基于前期与地铁公司沟通确认需满足以下约束条件:学校主体建筑需与地铁咽喉区完全脱开;地上结构与地下室边界均需退让地铁盾构线一定距离;并需利用咽喉区结构柱网,在其正上方设置地铁排烟设施。
面对上述限制,设计采取顺应场地的策略:将中小学教学主体及地下室布置于咽喉区北侧,南侧则集中设置体育馆及体育活动用房。南北两部分建筑通过架空连廊进行连接。咽喉区正上方区域,除设置必需的排烟井外,主要用于承载操场、运动场地、休闲活动空间及绿地等荷载要求低、且无结构干扰的功能,形成东西延展近500米的外向型开放式“运动谷”,巧妙实现功能与限制的有机融合。

▲总图概念草图

▲“两谷”概念草图

▲“运动谷”鸟瞰

▲“运动谷”鸟瞰
高密高容下的适应性空间组织
为化解因避让地铁盾构线导致的用地局限与高容积率挑战,本案采用了双管齐下的设计策略:
首先,通过院落组合模式打破空间局限。设计植入多组功能有别的主题院落(如学习庭院、生态花园、文化中庭),并利用架空层将其巧妙连接,形成一个有机整体。这些庭院虽在形态、尺度、风格和标高上各有特色,但均来自于咽喉区形态的拓扑变形,在有效改善采光通风的同时,更构成了一个极具趣味性的非正式学习与交流空间体系。

▲适应地铁咽喉区形态的空间组织
▲院落空间的拓扑形态

▲院落空间鸟瞰

▲小学部内院透视

▲小学部内院透视

▲小学部内院透视

▲中学部内院透视

▲中学部内院透视

▲中学部内院透视

▲中学部内院透视
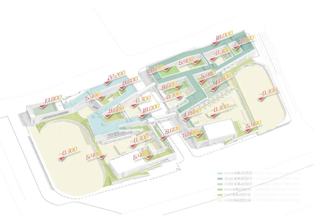
其次,积极进行垂直开发与平台联动。由于地面场地有限,设计转而向立体空间寻求解决方案,充分利用了咽喉区上方、架空层以及各层屋顶等空间。通过大台阶、坡道等积极的竖向交通设计,将这些不同标高的平台串联起来,最终构建出一个完整统一、流动而富有活力的立体公共空间网络。

▲立体平台体系分析

▲立体活力平台鸟瞰

▲小学部立体活力平台透视

▲小学部立体活力平台透视

▲小学部立体活力平台透视

▲中学部立体活力平台透视

▲中学部立体活力平台透视
最终,这些策略相辅相成,使校园超越了对高密高容指标的简单满足,演进为一个与场地共生、能持续激发学习与社交活力的校园场所。
跨道路一体化连通与共享
为解决中小学被中间城市道路分隔的问题,设计采用立体连通与功能共享的策略,旨在打破物理隔阂,促进校园一体化使用。
在立体连通方面,设计在道路上空设置了两条宽4米、长40米的封闭式空中连廊,直接连接道路两侧的教学区。这种全天候的连廊设计,不仅能保障学生安全、便捷地通行,不受天气影响,也可有效避免人车流线的交叉,提升校园的安全性与通达性。

▲空中连廊鸟瞰

▲空中连廊沿城市道路透视

▲空中连廊内部
在功能布局与共享方面,将中小学的主要出入口设置在中间道路两侧,使入口庭院与空中连廊相结合,共同围合出一个宽敞且相对内向的教学核心庭院。庭院周边除布置普通教室,还集中设置了图书馆、报告厅(小剧场)、书法教室、美术教室等公共性较强的教学空间。这种布局方式旨在促进中小学资源共享,提高设施使用效率,同时形成一个功能复合、氛围浓厚的教学交流中心。

▲核心共享庭院

▲核心共享庭院鸟瞰

▲核心共享庭院鸟瞰

▲从城市道路看向小学部核心共享庭院透视

▲从城市道路看向中学部核心共享庭院透视

▲从小学部看向核心共享庭院透视

▲从小学部看向核心共享庭院透视
这个教学核心庭院,不仅是空间组织的枢纽,也是功能交汇的中心。它由一系列教学空间围合而成,形成一个内向、静谧且具有私密感的“智慧谷”。与南侧开放活跃的“运动谷”相呼应,一动一静,一开放一私密,二者形成阴阳互补的有机整体,共同塑造出和谐而富有张力的校园空间格局。

▲“智慧谷”鸟瞰

▲剖透视分析图

▲立面概念草图
03.
结论与展望
面对地铁线横穿校园的先天限制,我们化制约为机遇,通过创新性布局与灵活的空间策略,在满足所有安全规范的基础上,成功打造出一座集共享、高效与活力于一体的现代化校园。这一设计不仅突破了基础设施的桎梏,更开创了“轨道+教育”融合发展的新模式,期望能够为未来城市与教育空间的共生提供富有价值的实践范本。

▲西侧沿河鸟瞰

▲西南角鸟瞰

▲南侧鸟瞰
项目信息
项目名称:宁波市鄞州区童第周实验学校
项目地址:宁波市鄞州区海晏南路与潘火路交叉口
项目业主:宁波市轨道交通物产置业有限公司
用地面积:93427㎡(其中小学44511m²,中学48916m²)
设计时间:2019.11-2022.12
建设时间:2022.12-2025.06
建筑设计:c+d设计中心
主持建筑师:董屹
主创设计师:高盘
建筑设计团队:杨凯悦、林淑雅、祁晓晗、张雪桐、林威、刘灿星、路晨凯、李实、吴晶晶
合作机构:宁波市房屋建筑设计研究院有限公司、浙江华展研究设计院股份有限公司(施工图)
建筑摄影:DC国际
山庄提示: 道行不够,道券不够?---☆点此充值☆
 
在线jjybzxw

UID: 551814


发帖
211643
金币
609434
道行
2006
原创
2438
奖券
3260
斑龄
41
道券
1197
获奖
0
座驾
设备
摄影级
在线时间: 46390(小时)
注册时间: 2008-10-01
最后登录: 2025-12-17
只看该作者 沙发  发表于: 4小时前
宁波市鄞州区前殷区块项目是宁波城市更新与产城融合发展的重点示范项目之一,地处东部新城与鄞州工业园区的衔接地带,具有重要的区位战略价值。该项目在城市空间重构、功能升级与可持续发展方面承担着多重使命。以下从项目规模与功能定位两个维度进行系统阐述,并结合区位特征、政策导向与城市发展逻辑深入解析其深层意义。
一、项目规模:复合开发、双地块联动的城市更新单元

前殷区块项目总用地面积约30公顷(约450亩),依据规划分为两个主要地块(A、B地块),整体开发强度适中,注重宜居性与产业协同的平衡:
A地块:位于西侧,毗邻景观水系与金达北路,以商务办公、创新研发与公共服务功能为主,拟建设区域性总部经济载体与科技孵化空间,容积率控制在2.0~2.5之间,建筑高度限高100米以内,形成错落有致的城市天际线。
B地块:位于东侧,紧邻地铁上盖住宅区(依托轨道交通5号线或规划线路),主打居住配套与生活服务功能,配建社区商业、邻里中心、教育设施及公共绿地,打造“15分钟社区生活圈”,容积率约2.2,强调人居品质与交通便利性的融合。

项目总体建筑面积预计超过70万平方米,涵盖住宅、办公、商业、公共配套等多种业态,实现土地集约高效利用,是典型的TOD(Transit-Oriented Development,以公共交通为导向的开发)+EOD(Ecology-Oriented Development,生态导向开发)复合模式实践区。
二、项目定位:三重目标驱动下的城市功能补强引擎

前殷区块的定位并非单一地产开发,而是服务于宁波“拥江发展”战略和鄞州“中部崛起”布局的关键支点,其核心定位可概括为以下三个方面:
城市功能缝合带:连接东部新城与产业腹地的“过渡枢纽”
当前,东部新城作为宁波行政与商务中心已趋成熟,而南侧的鄞州工业园区、潘火片区则以制造业为主导,存在“产强城弱”的结构性失衡。
前殷区块恰好位于这一“产—城断裂带”,通过引入高品质居住、创新服务与生态空间,填补中间缺失的城市服务层级,推动从“产业园区”向“产业社区” 转变,实现职住平衡与功能协同。
生态智慧城区样板:绿色基础设施引导的可持续发展示范区
地块北临潘火大道,南接城市绿带与甬台温高速防护林,西依天然景观水系,具备良好的生态本底。
规划强调“蓝绿交织、城景相融”,构建连续的慢行系统与海绵城市体系,推行绿色建筑标准(如二星级以上绿色建筑占比超80%)、分布式能源应用与智慧管理平台,力争打造近零碳排放示范单元,响应国家“双碳”战略与宁波生态文明建设目标。
TOD综合开发新标杆:轨道引领下的立体化城市空间重构
B地块直接衔接地铁上盖住宅区,意味着该区域将实现地下、地面、空中三维一体化开发:地下层与地铁无缝接驳,地面层布置商业与公共空间,空中连廊串联各功能组团。
此类开发模式不仅提升通勤效率,更激活站点周边活力半径(通常为500–800米),吸引青年人才、创新创业群体集聚,培育“轨道上的都市圈”微观样本。
三、深层意图解读:为何选择在此布局如此规模的项目?

用户询问“规模与定位”,实则隐含对城市发展逻辑与投资价值判断的关注。从前殷区块的选址与规划可窥见政府决策背后的多重考量:

| 维度 | 解读 |
|------|------|
| 空间战略 | 补齐东部新城向南拓展的“最后一公里”,避免城市蔓延无序,强化核心区辐射力。 |
| 经济转型 | 引入研发设计、信息服务等生产性 服务业,助力传统工业区转型升级,提升单位土地产出效益。 |
| 民生改善 | 改善潘火片区长期缺乏高品质公共配套的局面,增加优质住房供给,缓解就近就业人群的安居压力。 |
| 土地价值重塑 | 通过对低效工业用地、城中村进行再开发,实现土地增值反哺城市建设,形成良性循环。 |

因此,该项目不仅是物理空间的重建,更是制度创新、资本运作与社会治理的综合实验场。
四、未来展望:前殷区块能否成为宁波新版图中的“价值高地”?

若项目能按高标准实施并持续运营,其潜在影响将远超局部更新范畴:
短期(3–5年):完成基础建设与首批招商入住,形成初步人气,带动周边路网优化与教育资源导入;
中期(5–10年):产业集群初具规模,社区氛围成熟,成为鄞州东南部最具吸引力的宜居宜业板块;
长期(10年以上):若能衔接宁波科学城、东部新城扩容等更大战略,则有望升格为城市副中心级节点,甚至影响轨道交通线路进一步延伸的可能性。
结语:一个地块,折射一座城市的进化路径

宁波市鄞州区前殷区块项目虽仅为城市版图上的一小块拼图,却集中体现了当代中国大城市在高质量发展转型期的核心命题——如何平衡经济增长、生态保护与社会公平?如何通过精细化城市设计激活存量空间?又如何让交通、产业、居住、环境四大系统真正实现协同共生?

该项目的答案,或将为全国同类城市边缘区更新提供可复制、可推广的“宁波方案”。

如何不发帖就快速得到金币道行
 
快速回复
限120 字节
认真回复加分,灌水扣分~
 
上一个 下一个