切换到宽版
  • 6阅读
  • 1回复

[奇观]非常建筑新作:南京师范大学附属中学晓庄校区图书馆[37P] [复制链接]

上一主题 下一主题
在线jjybzxw

UID: 551814

 

发帖
211641
金币
609429
道行
2006
原创
2438
奖券
3260
斑龄
41
道券
1197
获奖
0
座驾
设备
摄影级
在线时间: 46390(小时)
注册时间: 2008-10-01
最后登录: 2025-12-17
只看楼主 倒序阅读 使用道具 楼主  发表于: 4小时前


01.
打造立体高密度校园
南京师范大学附属中学晓庄校区面积约6.67万平方米,总建筑面积约为9.5万平方米,另有不计容的架空区面积约1.7万平方米,配置42个班级。总体属于用地不足的高密度、紧凑型校园。基地中心现存一处市级文保建筑——民国空军第二通讯台旧址,同时还保留了一栋年代较新的高层学生宿舍楼需改造。
基于此现状,总平面规划以文保建筑及周边保留的大树作为核心景观,其南侧为教学办公区,北侧为生活运动区。北区西侧400米操场架空抬高,下方空间得以高效利用:临路一侧做家长可进入校园接送的停车区,减少对校门口道路的交通压力;中部为半下沉的游泳馆、训练馆、篮球馆以及风雨运动跑道,东侧为礼堂和食堂。架空操场之上,新旧两栋高层宿舍楼并置,与周边的高层住宅共同形成东高西低的城市肌理。师生课间登上操场,可获得在高密度环境中的远眺视野和放松的出口。

校园鸟瞰

功能分析
南区教学组团布局围绕文保建筑展开,建筑体量通过Z字弯折,形成五个半围合庭院。校园首层大量架空,庭院间可自由穿行,各建筑入口间也形成了彼此互动的视线关系。景观绿地伸入架空层,与多处下沉的半室外活动空间互动,为户外教学提供了场所。建筑间在不同标高上用开放平台或大跨连廊连通,把公共性延伸到上层教学空间。
建筑体量转折处设置的中庭、开敞楼梯与休息区,连廊内的开放阶梯教室,3.6米的宽走廊,都为学生课间自主学习、就近活动提供了多元化的场所。

南区鸟瞰

清水混凝土、GRC镂空花格、玻璃砖和质感涂料的搭配,给立面带来微妙的光影变化

架空穿行的校园环境

大跨连廊内的开放阶梯教室

操场下方的风雨跑道
02.
重构开放藏阅空间
图书馆位于校园中心的文保建筑广场东侧,规模约3800平方米,是“开放式学校”设计理念的具体体现。

图书馆外立面

图书馆入口
设计打破楼层的常规做法,将五处大跨度的管状或阶梯状藏阅空间交错穿插在共享中庭内,两类空间分别对应半封闭阅览和开放阅览两种阅览模式。顶部天窗为中庭引入自然光线,经多次反射渐次照亮中庭,营造出富有层次的光影体验。
.

张永和手绘草图

图书馆剖面图
开放的阶梯阅览区通过一条连续的“漫游路径”串联,从首层门厅依次连接新书阅览区、服务台、阅读看台及多个标高的学生阅览阶梯平台,最终延伸至顶层电子阅览室。路径上均有坡道,可实现平台间的无障碍连通。半封闭的管状阅览空间则主要容纳教师阅览室与藏书区,其标高与楼层相对应。

一层新书阅览区

中庭南侧的开放楼梯

从南侧楼梯仰望天窗

从管状藏阅空间的长条窗口看向中庭

二层的管状阅览空间

从管状藏阅空间看向中庭
阶梯及管状阅览空间采用大跨度斜向箱型与矩形截面梁结构,均架设于中庭两端的核心筒上。由此,中庭得以实现大面积的斜高窗,将室外大树的绿意映入室内。同时,管状阅览室利用通长条窗,建立与中庭的视觉联系。

二层学生阅览区,可以看见东侧窗外的浓密绿荫

二层开放式阶梯阅览空间

送风管藏在结构空腔内,风口与家具整合

开放式阶梯阅览空间,通过阶梯及坡道实现不同平台的连接

三层东侧阶梯阅览空间顶部
03.
结构设备一体化
图书馆内外大量使用了光面竹胶板的清水混凝土,结构既是材料,也定义了空间。光滑的清水混凝土与实木地板、栏板及书架相结合,平衡了室内空间的雕塑感与亲切感。

从中庭南侧开放楼梯上看中庭

从五层核心筒内观景窗看向中庭
设备管道从中庭两侧的核心筒内接出,排布于大跨结构间的梁腔里。地面为架空做法,容纳喷淋管或风管,以保证清水混凝土表面的整体性。空调出风末端整合在固定书架、桌面、栏板等设施内,实现建筑、结构、设备、装修的一体化设计。
本项目主要采用剖面推敲整合空间形式、结构与设备需求,并通过Revit模型复核与施工阶段的全专业BIM协调,确保了复杂空间与清水混凝土结构的高完成度。

从开放楼梯顶部看向中庭:书架与空调风口整合

六层的管状藏阅空间
图纸

▲ 校区总图 ©FCJZ

▲ 一层平面 ©FCJZ

▲ 二层平面 ©FCJZ

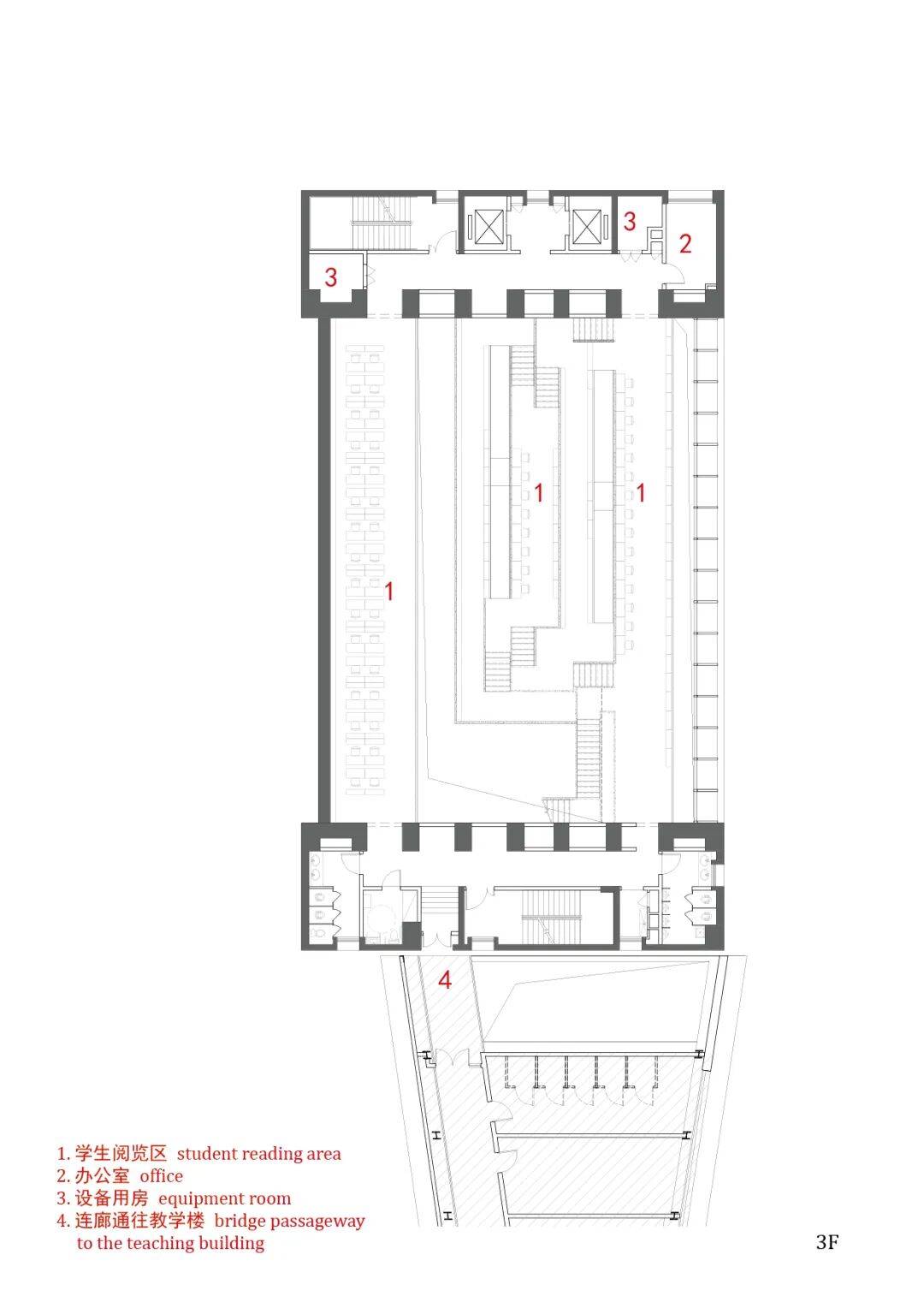
▲ 三层平面 ©FCJZ

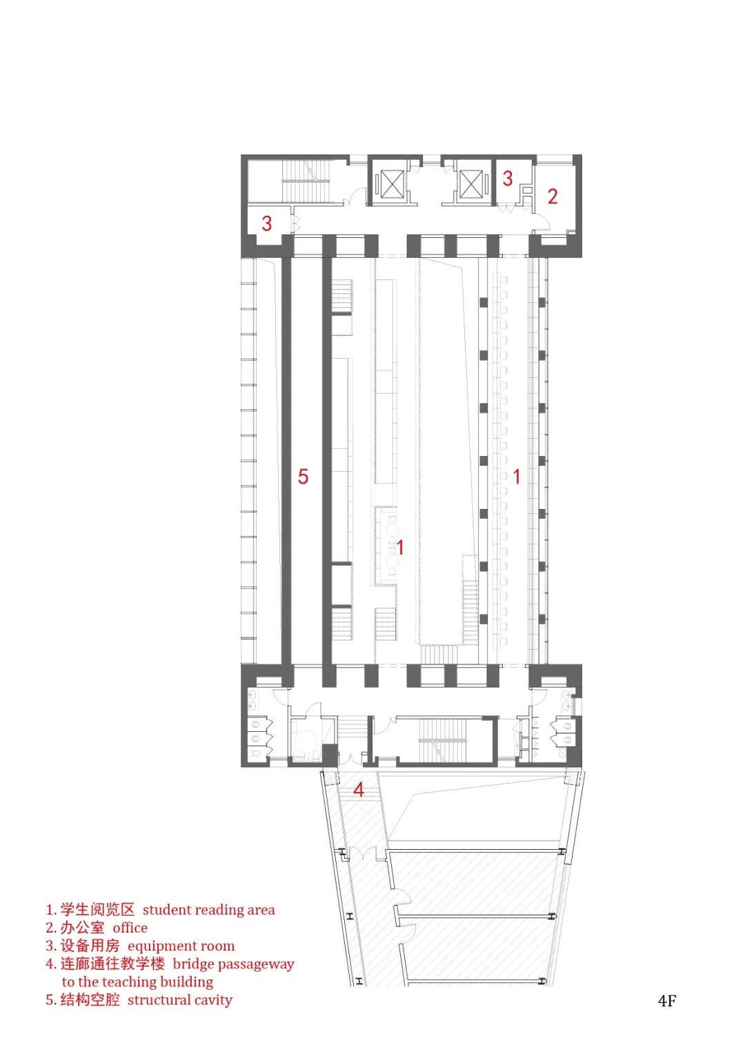
▲ 四层平面 ©FCJZ

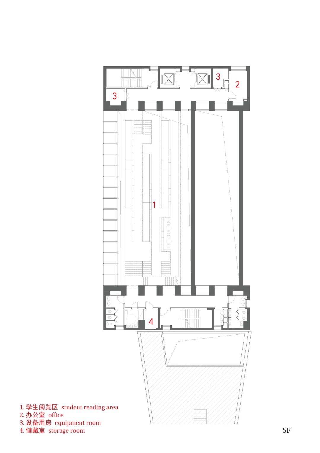
▲ 五层平面 ©FCJZ

▲ 六层平面 ©FCJZ

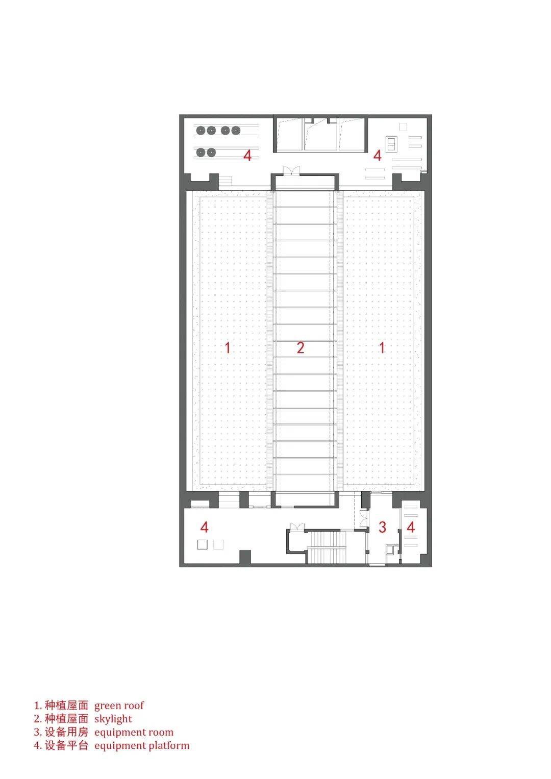
▲ 屋顶设备层平面 ©FCJZ


▲ 剖面 ©FCJZ
▲ 立面 ©FCJZ
项目信息
业主:南京师范大学附属中学
地点:南京市栖霞区
主持建筑师:张永和、鲁力佳
项目团队:
规划:梁小宁、黄舒怡、王玥
建筑:黄舒怡、王文志、王玉山、柳超、张鹤、何泽林、焦慧敏、汤艳妮 等
室内:王文志、黄舒怡
景观:师琦
施工图设计: 江苏省建筑设计研究院股份有限公司
施工单位:江苏南通二建集团(北区),通州建总集团(南区)
基地面积:67189.57 ㎡
建筑面积:80581㎡(新建部分)、14142㎡(改造部分)
建筑高度:23.9 m(多层部分)49.6m(高层部分)
设计周期:2019 - 2022
建造周期:2022 - 2025
竣工时间:2025
摄影: 田方方
山庄提示: 道行不够,道券不够?---☆点此充值☆
 
在线jjybzxw

UID: 551814


发帖
211641
金币
609429
道行
2006
原创
2438
奖券
3260
斑龄
41
道券
1197
获奖
0
座驾
设备
摄影级
在线时间: 46390(小时)
注册时间: 2008-10-01
最后登录: 2025-12-17
只看该作者 沙发  发表于: 4小时前
南京师范大学附属中学晓庄校区在城市土地资源日益紧张的背景下,致力于打造一个“立体高密度校园”,以应对空间限制与教育品质提升的双重挑战。该项目不仅是对现代教育空间的一次创新探索,更体现了对未来学校形态的深度思考。以下是该校区如何实现这一目标的系统性策略与实践路径,从规划理念、空间组织、功能复合、生态融合到人文关怀五个维度进行深入解析。
一、垂直叠加:重构校园空间逻辑,实现三维发展

传统校园多采用水平延展模式,而晓庄校区突破平面局限,通过“向上生长”的垂直布局,将教学、生活、运动、交流等功能在竖向空间中高效整合。
多层平台系统:建筑群以不同标高的平台连接,形成“地面—空中庭院—屋顶活动区”的立体结构。例如,二层设置共享学习廊道,连接各教学楼;四层布置开放式阅读花园,成为师生课间休憩与非正式学习的场所。
地下空间开发:合理利用地下两层空间,容纳停车场、设备用房、部分实验室及风雨操场,释放地面用于绿化与活动,极大提升了土地利用率。
空中连廊网络:各主要建筑通过封闭或半开放连廊相连,确保雨雪天气下的无障碍通行,同时增强空间可达性与使用效率。

这种“立体织网”式的空间结构,使有限用地承载更多功能,实现了建筑密度与使用舒适度的平衡。
二、功能复合:打破单一用途边界,激发空间活力

在高密度环境中,单一功能的空间易造成资源浪费和使用低效。晓庄校区倡导“多功能、可变式、弹性化”的设计理念,推动空间的高度复合利用。
教室的灵活转换:普通教室采用移动隔断、模块家具设计,可在短时间内转变为小组研讨室、艺术工坊或临时展览空间。
公共空间的教学渗透:走廊、楼梯转角、中庭等区域被赋予“第二课堂”功能,设置展示墙、迷你书吧、互动装置,让学习行为自然延伸至非正式空间。
食堂兼作报告厅:通过升降座椅与声学隔断技术,食堂在非用餐时段可快速转换为千人规模的学术报告厅或文艺演出场地。
屋顶空间多功能化:部分屋顶设计为绿色农场(劳动教育基地)、太阳能光伏板阵列(能源教育)与轻质运动场(羽毛球、瑜伽)三位一体的复合空间。

这种“一区多能、一时多用”的策略,显著提升了单位面积的教育产出效能,也培养了学生的空间适应力与创造力。
三、生态韧性:构建可持续发展的绿色基底

高密度不等于高能耗。晓庄校区将生态理念贯穿于建筑设计与运营管理全过程,打造低碳、智能、自循环的校园生态系统。
立体绿化体系:墙面垂直绿化、空中花园、下沉庭院层层递进,形成“点—线—面”结合的绿量分布,有效缓解热岛效应,改善微气候。
雨水回收与海绵城市技术:通过透水铺装、生态草沟、蓄水池系统收集并净化雨水,用于景观灌溉与冲厕,年节水率达40%以上。
被动式节能设计:建筑朝向优化采光通风,外遮阳系统减少夏季得热,中庭烟囱效应促进自然通风,降低空调依赖。
智慧能源管理:集成光伏发电、地源热泵、能耗监测平台,实现能源生产与消耗的实时调控,力争达到近零碳排放目标。

校园本身成为一部“活的生态教科书”,学生在日常生活中直观理解可持续发展理念。
四、人文关怀:在紧凑中营造归属感与自由感

高密度校园极易带来压抑感与疏离感。晓庄校区特别注重心理尺度的设计干预,强调“人在空间中的体验”。
尺度分化处理:高层建筑底部采用退台、架空、错落布局,避免体量压迫;内部空间通过材质变化(木材、暖色涂料)、光影层次营造亲切氛围。
视线通透与视觉延展:大量运用玻璃幕墙、镂空格栅、镜面反射等手法,增强空间穿透感,使小空间产生大视野。
专属领地营造:为每个班级分配“微型领域”,如阳台种植角、文化展示墙、自习胶囊舱,增强集体认同感。
动静分区明确:教学区静谧集中,生活区温馨私密,运动区活力外放,辅以声学隔离措施,避免相互干扰。

通过细腻的空间心理学设计,让学生在高效利用的空间中仍能感受到自由呼吸与情感寄托。
五、教育赋能:空间服务于未来育人模式变革

最终,立体高密度校园的本质不是建筑问题,而是教育问题。晓庄校区的空间革新,是为支持新课程改革、项目式学习(PBL)、跨学科融合等现代教育理念提供物理载体。
跨学科融合空间:设立STEAM中心、创客实验室、媒体制作 studio,鼓励科学、工程、艺术的跨界协作。
自主学习支持系统:遍布校园的“学习节点”(study hub)配备电源、Wi-Fi、白板桌,支持个性化学习节奏。
社会链接场景植入:引入社区共享图书馆、家长等候驿站、企业合作展厅,打破校园围墙,促进教育资源社会化流动。

空间不再是被动的容器,而是主动参与教学过程的“第三位教师”。
结语:从“容纳”到“激发”——立体高密度校园的范式转型

南京师范大学附属中学晓庄校区的实践,标志着中国基础教育空间正从传统的“功能分区+低密度扩张”模式,转向“立体复合+精明增长”的新型范式。它不仅解决了土地紧缺的现实困境,更重要的是重新定义了“好学校”的标准:  
真正的优质教育环境,不在于占地多广,而在于能否在有限空间中激发无限可能。

该校区的成功经验,或将为全国城市中心区新建学校提供可复制、可推广的“高密度高品质”解决方案,引领未来校园建设的新方向。
如何不发帖就快速得到金币道行
 
快速回复
限120 字节
认真回复加分,灌水扣分~
 
上一个 下一个