切换到宽版
  • 11阅读
  • 2回复

[奇观]四川棚朋儿餐厅 / UN-GROUP未集建筑//珠海祯厨娘城市食堂 / 堺工作室[61P] [复制链接]

上一主题 下一主题
在线jjybzxw

UID: 551814

 

发帖
222345
金币
697395
道行
2006
原创
2450
奖券
3340
斑龄
42
道券
1233
获奖
0
座驾
设备
摄影级
在线时间: 48163(小时)
注册时间: 2008-10-01
最后登录: 2026-01-28
只看楼主 倒序阅读 使用道具 楼主  发表于: 7小时前
四川棚朋儿餐厅 / UN-GROUP未集建筑[39P]


© 刘松恺
位于四川彭州丹景山镇的湔江小火车线性公园,是一条以火车站为核心,有机串联餐饮、展览、亲子、艺术、户外运动、遗产活化与自然景观的综合性旅游动线。其前身为彭白铁路,承载着彭州人深厚的集体记忆。这条1961年通车的39公里窄轨铁路,曾穿行山区,是居民出行、求学、赶集的重要通道。虽于2000年左右停运拆除,却始终是彭州人心中不可替代的情感纽带。2017年,彭州市政府恢复了丹景山段的3.5公里轨道,打造湔江小火车文旅线路,后因疫情与运营问题于2022年再度停运。


▲项目鸟瞰© 刘松恺
2024年,在“运营前置”理念推动下,运营团队九陇新创与未集建筑共同启动了彭白铁路复兴计划,湔江小火车线性公园由此新生。我们提出“时光折叠·轨上新生”的主客共享概念,以3.5公里铁轨串联五个站点、四段主题景观,并联动丹景山镇十三个项目节点。小火车如同时空胶囊,引领游客穿行于记忆的蒙太奇。目前,五个主要站点中已有三个初具规模,预计2026年春夏全线贯通。

▲场地平面图© UN-GROUP未集建筑


▲项目概览© 刘松恺

▲远眺建筑© 刘松恺
棚朋儿餐厅作为线性公园的首站,毗邻彭白铁路的标志——1961年建成的关口老站。餐厅以“老站新生”为理念,复刻成都人“约三五好友,棚下喝茶”的闲适生活,融合茶咖、精酿、烧烤与川式西餐,为历史站点注入新活力。


▲原始场地

▲轨道侧立面© 刘松恺

▲新与旧的立面对比© 刘松恺
川西坝子的劳动人民历来有着“搭棚棚儿”的习俗,设计紧扣这一地域特色与“老站新生”的主题,特意让出四分之一的红线范围,在原有关口老站一侧延展出一个与之齐高的倾斜半室外棚顶,既作候车区,亦为餐厅核心。一座轻质钢楼梯在不扰动老建筑的前提下,将棚顶与老站屋顶平台相连,使历史空间转化为餐厅的有机延伸。


▲化为餐厅的有机延伸© 刘松恺
为塑造一个轻盈、通透的“棚棚儿”,建筑主体采用钢结构。棚儿下的钢柱顺势倾斜,与棚儿顶扬起的钢梁呈90度角衔接,轻盈而坚定地“扎根”于站台之上,展现出力与美的平衡。
▲棚棚儿钢结构© UN-GROUP未集建筑


▲半室外棚顶空间© 刘松恺
半室外棚棚儿布置瓦片的檩条系统被直接暴露,形成独特的顶部视觉。透明瓦与石板瓦随机穿插,白天阳光渗下,光斑点点;夜晚地上预埋的极小地埋灯透出点点亮光,如星光洒地,日夜浪漫交替。


▲独特的顶部视觉© 刘松恺
餐厅前场原有两棵梧桐树,棚棚儿原本为它们预留出破顶的空间。但开挖过程中发现两棵树的根系已空,又在施工中长期暴露,健康状况出现不可逆的衰退。两棵梧桐树被移植至公园内更适宜的环境,并在原址补种了两棵成熟的栾树。两棵树枝桠突破棚儿顶,树梢远眺远处的龙门山,他们成为建筑的一部分,持续生长。

▲突破棚儿顶的树© 刘松恺
棚下空间功能灵活复合:现浇清水混凝土吧台以其木纹肌理柔化了材质的冷峻;依托斜柱的悬浮长台既可候车小憩,也适合友人小酌;老站一侧设置的秋千,已成为深受居民喜爱的游戏角落。

▲剖面图© UN-GROUP未集建筑

▲清水混凝土吧台© 刘松恺
10米长的中央现浇吧台是功能与视觉的焦点,同时服务于站台、后侧公园与室内就餐区。在建筑语言上,它独立于主体屋顶,采用半透PC板屋面,嵌入深灰色钢构之中。夜晚,它如灯笼般漫射出暖光,向外传递着温暖的烟火气息。

▲温暖的烟火气息© 刘松恺
场地原有的1.2米高差通过三级台地消化,最低处成为休憩座面。斜柱体系延续至室内,单坡屋顶顺应地形起伏,屋顶形式呼应地形的层层跌落,采用单坡屋面,在保证3.2米舒适净高的同时,营造出富有节奏的空间序列。以中央吧台与庭院为界,两侧的单坡屋顶呈V形,不仅组织了排水,更将整个建筑的“势能”引向核心的吧台区域。


▲富有节奏的空间序列© 刘松恺
立面以大面积玻璃为主,最大化餐厅的通透性与开放性。为了达到极致的轻薄屋顶观感,所有暖通设备均被预埋于地面之下。在深灰色钢结构与混凝土的基调上,室内大量运用温暖的老木、藤编与实木家具,灵感源自老成都的竹编椅,重塑本地休闲记忆。天花与踢脚线统一采用株木,幕墙铝窗框也选用同色系。

▲玻璃立面© 刘松恺


▲餐厅室内概览© 刘松恺
餐厅后侧的三角绿地规划为亲子嬉水乐园,整面折叠门可在适宜季节完全打开,使室内外融为一体。我们也设置了多级室外平台作为室外就餐和休憩空间。

▲可开合的折叠门© 刘松恺
绿植被系统性地融入建筑:精酿区与包间之间的中庭成为静谧花园;斜柱上方的雨棚设计为连续种植池,叶儿垂下,棚儿下长草;室内卡座区间嵌入连续花池,并在上方悬挂摆放植物的金属网架,构成一幅可随植物生长而变化的“立体绿窗”;包间的餐桌周边亦环绕一圈大叶植物,进一步模糊室内与自然的边界。


▲绿植被融入建筑© 刘松恺


▲模糊室内与自然的边界© 刘松恺

▲庭院© 刘松恺
细节处致敬工业遗存:平台栏杆、大门把手取材自小尺寸铁轨;包间阶梯复用老枕木,以温润的质感和岁月的痕迹唤醒历史记忆;室内单侧卡座采用了内嵌式轨道,方便座椅能根据使用需求灵活移动,增强了空间的适应性。


▲细节© 刘松恺
项目在施工阶段遭遇了不少挑战,其中最具代表性的是中央大吧台的现浇施工。为了确保最终效果,设计团队主导在园区内进行了多次实验性浇筑,通过反复比对不同材料配比与木模板体系的效果,最终确定了最优方案。其中一个混凝土吧台小样被特意保留下来,成为园区内一处独特的景观小品,见证着从实验到实现的完整过程。

▲景观小品© 刘松恺
如今,随着小火车进入试运行阶段,棚朋儿餐厅也已超越单一的车站功能,演变为深受本地居民喜爱的社区客厅与日常据点。它不仅成功激活了历史站点,更成为连接过去与现在、游客与居民、自然与建筑的活力纽带,为湔江小火车线性公园的全面复兴写下了生动的序章。


▲夜景© 刘松恺
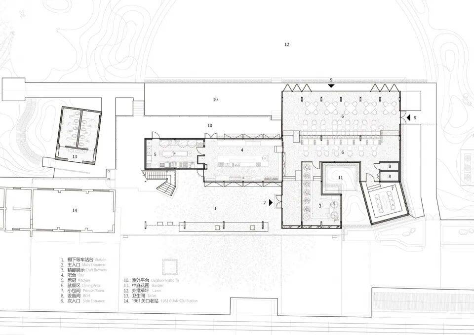
项目图纸

▲总平图© UN-GROUP未集建筑

▲平面图© UN-GROUP未集建筑
项目名称:棚朋儿餐厅
项目地点:四川省彭州市丹景山镇
项目类型:概念规划、建筑设计、室内设计
业主单位:四川龙门山文化旅游发展有限公司
设计主创团队:UN-GROUP 未集建筑、杨烈
运营团队: 彭州市九陇新创文化旅游发展有限公司
施工图团队:中联西北工程设计研究院
施工单位:彭州市兴彭建筑工程有限公司
结构顾问:iStructure
灯光顾问:陈樱鹦
景观设计:成都漫诗地园艺有限公司
驻场设计师:谢雨桐、于广利、刘阳城
摄影:刘松恺
建筑面积:410㎡
项目设计:2024年8-12月
施工完成:2025年11月
========================================================================================================================================

珠海祯厨娘城市食堂 / 堺工作室 [22P]


© 堺工作室
在城市化进程以均质化面貌快速推进的今天,场所精神的存续与唤醒,成为空间设计的重要使命。祯厨娘城市食堂静静坐落于珠海一隅,离海不远。它不只是一个吃饭的地方,更像一座以食物为语言、以空间为媒介的驿站,悄然缝合着城市人与这片土地之间淡去的记忆。我们选择了“珠海渔村”作为故事的底色。渔村的日子,是一场与海的长久对话,所有的生活都绕不开“编织”二字:织网捕鱼,编竹盛物,人与人之间的依存,也如经纬交织。我们从这片海的生活中,拾取了三种沉默的见证——渔网的绳结、温润的竹编、岸边的蚝壳。它们不只是物件,更是呼吸着的智慧。我们试图让它们走出往昔的语境,在现代的食空间里重新表达。

▲南立面© 堺工作室
设计的核心策略在于“记忆的当代转译”。为了避免符号的直白堆砌,我们深入了解了珠海曾经做为一个渔村的传统与现代生活的肌理,渔村的生活,本质上是与海洋共舞的生存智慧,一切皆与“编织”有关:编织渔网以收获,编织竹器以盛载,甚至与海共生所形成的社区纽带,也是一种社会关系的编织。于是我们从这一点出发提取出“渔网绳结”、“非遗竹编”、“蚝壳”这三种极具代表性且蕴含工艺智慧的元素。通过对其材料特性、制作工艺及文化意义的再思考,将其从原有的生产与生活语境中释放,置于现代建筑的空间逻辑中进行重塑。它们不再是附加的装饰,而是构筑空间氛围、界定区域性格、引导行为模式的结构性要素。绳网的“联结”,竹编的“空间庇护”,蚝壳的“沉淀”,共同编织出一张覆盖整个场所的、细腻而坚韧的情感网络。最终,我们构建了一个不仅仅只满足高效就餐功能的场所,更是一个充满叙事张力、激发多元本土化体验的“情感容器”。

▲西立面© 堺工作室
渔网绳结的光影

▲入口处的绳结墙© 堺工作室
光,也被我们织进了空间。灯泡如鱼,被粗细不一的麻绳悬吊,从天花缓缓垂下。灯亮时,绳影投在墙与地上,轻轻摇曳,仿佛水下晃动的波光。工业的照明在此退场,光的本身,成了温暖的叙事。这一设计,将功能性照明彻底转化为氛围营造的艺术装置,柔化了空间的边界。

▲麻绳悬吊的灯泡© 堺工作室
竹编-通透的庇护
竹编技艺是珠海市三灶的传统手工编织技艺,是广东省非物质文化遗产代表。其历史悠久,相传起源于明嘉靖时期,清光绪《香山县志》中已有“竹盒竹篮之类大小不一,编竹丝为之细密精致”之记载。竹编工艺,蕴含着东方美学中对于“间隙”与“通透”的深刻理解。我们与本地匠人合作,将这一传统技艺推向一个的大 尺度的空间应用场景。空间中,数个手工竹编檐以群落的方式悬浮。它们有方形的,也有圆弧形的,大大小小,高高低低,错落成一片片柔和的屋檐。这种布置模拟了渔村建筑群自然生长的、错落有致的屋顶天际线,打破了标准化吊顶的单调,赋予了空间丰富的视觉层次与节奏感。

▲竹编檐轴测图© 堺工作室

▲高低错落的竹编© 堺工作室
在每一个竹编檐的下方,我们都配套设计了定制化的座椅组合。巨大的竹罩如同“屋中屋”,其投射下的光影区域自然形成了一个心理上的归属范围。人们坐在其下,会获得一种被轻柔包裹的“领域感”与“庇护感”。然而,竹编通透的缝隙又保证了视觉的穿透,实现了物理分隔与视觉连贯的完美统一,即“隔而不断”。这种模糊的边界,鼓励了不同区域就餐者之间微妙的视线交流与空间对话,避免了绝对私密带来的封闭感。

▲被竹编檐包裹的格式空间轴测图© 堺工作室


▲竹编檐空间© 堺工作室


▲竹编檐下的桌子© 堺工作室
竹编的缝隙本身成为光的过滤器。白天,自然光被切割成细碎的光斑,在地面晃动;夜晚,内部隐藏的暖光灯泡透过编织间隙洒下,营造出星罗棋布、“渔火点点”的温暖景象。光线在这里经历了第二次“编织”,变得愈发柔和与富有情感。

▲弧形竹编檐© 堺工作室
蚝壳·凝固的潮汐
蚝壳,也是珠海这一沿海地区特有的产物,承载着海洋的赠与与岁月的洗礼。我们将它做为墙体的一部分,视为一种“时间的沉积岩”来处理。我们收集了本地废弃的蚝壳,经过清洗、消毒、筛选,美化,保留其最本真的形态与色泽。将蚝壳不规则地置入铁网中,像大海的波浪。其曲面自然形成丰富的光影凹凸,粗粝、坚硬的触感,与竹编的温润、麻绳的柔软形成极具张力的对比。靠近时,甚至能依稀感受到海风带来的微咸气息的想象。它是一面可触摸的“地方皮肤”,直接唤醒人们对海洋材质最原始的触觉记忆。为整个轻盈的空间注入了一份厚重的质感。

▲像海浪的蚝壳墙© 堺工作室
空间如诗,段落自成
基于对现代都市人多重就餐需求的洞察,我们将空间流线组织成一段富有节奏的叙事序列,整个食堂的流动,也仿若渔村一日。

▲平面轴测图© 堺工作室

▲入口© 堺工作室
前区是快食区,竹罩高悬,桌椅轻快。是为匆忙的人备下的停顿,简单而明亮。这里座椅以灵活的四人位与双人位为主,排列紧凑但不拥挤。照明明亮而均匀。材质选择上,更多地使用柔和的木质桌椅。该区域服务于追求效率的上班族、商务客或独自用餐者。往里走,光线渐柔,竹编的群落低垂,缓食区围合出卡座与圆桌。灯光被竹编柔和地过滤后,形成静谧、温暖的光晕,如同南方午后透过芭蕉叶洒下的斑驳阳光。这里是朋友聚会、家庭聚餐或需要稍事休憩的顾客的首选。竹编罩创造的半围合感,提供了恰到好处的心理私密性,唤起了在渔村老屋屋檐下,摇着蒲扇、喝茶聊天的闲适记忆。吧台则如一座弧形的岛,被竹编轻轻环抱。酒水在此传递,故事在此交汇。

▲连廊© 堺工作室

▲就餐区© 堺工作室
往里走,光线渐柔,竹编的群落低垂,缓食区围合出卡座与圆桌。灯光被竹编柔和地过滤后,形成静谧、温暖的光晕,如同南方午后透过芭蕉叶洒下的斑驳阳光。这里是朋友聚会、家庭聚餐或需要稍事休憩的顾客的首选。竹编罩创造的半围合感,提供了恰到好处的心理私密性,唤起了在渔村老屋屋檐下,摇着蒲扇、喝茶聊天的闲适记忆。

▲缓食区© 堺工作室
吧台则如一座弧形的岛,被竹编轻轻环抱。酒水在此传递,故事在此交汇。


▲弧形吧台© 堺工作室

祯厨娘城市食堂的落成,是我们对于在地性”设计方法论的一次深入实践。真正的文化传承并非仿古复刻,而是在深刻理解本土精神内核的基础上,进行创造性的当代转译。绳结、竹编、蚝壳,这些朴素甚至被视为“廉价”的材料,因其承载的集体记忆与手工温度,在不同的设计手法下,也能焕发出它们的情感力量与美学价值。这或许便是所谓的“在地”——不是将传统供奉起来,而是让它走进日常,麻绳会在触摸中变得温润,竹色会在时光里渐渐深沉,蚝壳的缝隙也许会藏进新的故事。在每一次凝视、每一次触摸、每一次坐下吃饭的时刻,轻轻醒来。

▲造性的当代转译© 堺工作室
项目名称:珠海祯厨娘城市食堂
设计方:堺工作室
完成时间:2025年10月-2025年12月
室内设计:成潜魏,张卓群,李敏智
品牌设计:至上品牌工厂
项目地址:中国广东珠海
建筑面积:总建筑面积410㎡
摄影版权:堺工作室
[ 此帖被jjybzxw在2026-01-28 08:52重新编辑 ]
山庄提示: 道行不够,道券不够?---☆点此充值☆
 
在线jjybzxw

UID: 551814


发帖
222345
金币
697395
道行
2006
原创
2450
奖券
3340
斑龄
42
道券
1233
获奖
0
座驾
设备
摄影级
在线时间: 48163(小时)
注册时间: 2008-10-01
最后登录: 2026-01-28
只看该作者 沙发  发表于: 7小时前
四川棚朋儿餐厅与珠海祯厨娘城市食堂:地域记忆的“当代转译”与“空间叙事”

两个项目均以地域文化为根基,通过不同的设计策略,将历史记忆、材料语言与空间功能深度融合,构建出具有情感共鸣的场所。以下从设计逻辑、材料语言、空间叙事、文化隐喻四个维度展开对比分析:
一、设计逻辑:历史激活 vs. 渔村重生
1. 四川棚朋儿餐厅:以“老站新生”激活集体记忆
场地基因:项目位于彭州丹景山镇,毗邻1961年建成的关口老站,是彭白铁路(1961-2000)的标志性站点。铁路停运后,成为当地人心中不可替代的情感纽带。  
核心策略:  
“时光折叠·轨上新生”:通过复刻成都人“棚下喝茶”的闲适生活,将茶咖、精酿、烧烤与川式西餐融入历史站点,打造“主客共享”的社区客厅;  
“轻介入”设计:保留老站主体,延展半室外棚顶作为候车区与餐厅核心,用轻质钢楼梯连接老站屋顶平台,实现历史空间的有机延伸;  
“运营前置”:作为湔江小火车线性公园的首站,餐厅需联动五个站点、四段主题景观,成为文旅动线的活力起点。  
文化隐喻:设计如同一部“时空折叠机”,将铁路的集体记忆与现代生活方式压缩进同一空间,让访客在棚下喝茶、树下小憩时,完成对过去的追溯与当下的体验。
2. 珠海祯厨娘城市食堂:以“渔村三宝”唤醒地方精神
场地基因:项目位于珠海,离海不远,曾是渔村聚落。渔村生活围绕“编织”展开:织网捕鱼、编竹盛物、社区纽带如经纬交织。  
核心策略:  
“记忆的当代转译”:提取渔网绳结、非遗竹编、岸边蚝壳三种元素,通过材料特性、制作工艺与文化意义的再思考,重塑现代食空间;  
“情感容器”构建:绳结的“联结”、竹编的“庇护”、蚝壳的“沉淀”形成结构性要素,界定区域性格、引导行为模式,超越单一就餐功能;  
“渔村一日”叙事:空间流线模拟渔村生活节奏,从前区快食区到缓食区、吧台,形成“匆忙停顿-闲适聚会-故事交汇”的序列。  
文化隐喻:设计如同一首“渔村诗篇”,将海洋的呼吸、手工的温度与社区的记忆编织进空间,让访客在吃饭、聊天时,触摸到珠海的“地方皮肤”。
二、材料语言:粗粝与温润的对话
1. 棚朋儿餐厅:粗粝工业感与自然生长的平衡
材料选择:  
钢结构棚顶:钢柱倾斜、钢梁扬起,展现力与美的平衡,透明瓦与石板瓦随机穿插,形成日夜交替的光影;  
清水混凝土吧台:木纹肌理柔化冷峻材质,与老站一侧的秋千、悬浮长台共同营造温暖烟火气;  
工业遗存再利用:平台栏杆取材自小尺寸铁轨,包间阶梯复用老枕木,唤醒历史记忆。  
情感表达:粗粝材料(钢结构、混凝土)与自然元素(栾树、绿植)形成对比,让空间既有工业遗存的厚重感,又有自然生长的轻盈感。
2. 祯厨娘城市食堂:温润手工感与海洋粗粝的碰撞
材料选择:  
渔网绳结:麻绳悬吊灯泡,绳影摇曳如波光,将功能性照明转化为氛围装置;  
非遗竹编:手工竹编檐模拟渔村屋顶天际线,高低错落,形成“隔而不断”的视觉层次;  
蚝壳墙:废弃蚝壳置入铁网,曲面形成光影凹凸,与竹编的温润、麻绳的柔软形成张力对比。  
情感表达:温润材料(竹编、麻绳)与粗粝材料(蚝壳)的碰撞,让空间既有渔村的质朴感,又有海洋的厚重感。
三、空间叙事:日常性 vs. 仪式感
1. 棚朋儿餐厅:日常性中的历史层积
空间亮点:  
棚下空间:现浇清水混凝土吧台、悬浮长台、秋千等设施,满足候车、小酌、游戏等多重需求,成为社区居民的日常据点;  
中央吧台:10米长、半透PC板屋面,夜晚如灯笼般漫射暖光,向外传递烟火气息;  
室内外融合:后侧三角绿地为亲子嬉水乐园,折叠门完全打开后,室内外融为一体。  
用户体验:空间如同一部“生活纪录片”,记录着本地居民的闲适日常与历史站点的活化过程。
2. 祯厨娘城市食堂:仪式感中的渔村记忆
空间亮点:  
快食区:竹罩高悬,桌椅轻快,服务于上班族、商务客,照明明亮均匀;  
缓食区:竹编群落低垂,卡座与圆桌围合,灯光柔和如芭蕉叶下的斑驳阳光,唤起渔村老屋的闲适记忆;  
吧台:弧形岛被竹编环抱,酒水传递、故事交汇,成为空间的核心节点。  
用户体验:空间如同一场“渔村仪式”,访客从前区的匆忙到缓食区的闲适,最终在吧台完成情感的沉淀与交流。
四、文化隐喻:时空折叠 vs. 海洋呼吸
1. 棚朋儿餐厅:时空折叠的“老站胶囊”
隐喻逻辑:  
历史折叠:老站与新建棚顶形成“似与不似”的模糊感,让访客难以辨别建成时间;  
功能折叠:餐厅兼具候车、就餐、亲子、社区活动等多重功能,成为线性公园的活力枢纽;  
记忆折叠:铁轨、枕木、梧桐树(后替换为栾树)等元素,将铁路记忆折叠进现代空间。  
哲学背景:设计如同一场“考古现场的即兴表演”,既尊重历史层积,又通过当代语言赋予其新生命。
2. 祯厨娘城市食堂:海洋呼吸的“渔村诗篇”
隐喻逻辑:  
绳结的联结:渔网绳结象征渔村社区的紧密纽带,麻绳悬吊的灯泡如鱼群游动,唤醒海洋记忆;  
竹编的庇护:手工竹编檐模拟渔村屋顶,提供心理归属感,同时保持视觉穿透,鼓励空间对话;  
蚝壳的沉淀:废弃蚝壳墙如“时间的沉积岩”,粗粝触感与海风微咸的想象,让空间充满海洋气息。  
哲学背景:设计如同一首“海洋的呼吸”,将渔村的生存智慧与地方精神编织进现代生活。
五、对比总结:历史温度 vs. 海洋诗意
| 维度       | 四川棚朋儿餐厅                     | 珠海祯厨娘城市食堂                 |
|----------------|---------------------------------------|---------------------------------------|
| 设计逻辑   | 历史激活,通过“老站新生”重构集体记忆   | 渔村重生,通过“渔村三宝”唤醒地方精神   |
| 材料语言   | 粗粝工业感(钢结构、混凝土)与自然生长(绿植、栾树) | 温润手工感(竹编、麻绳)与海洋粗粝(蚝壳) |
| 空间叙事   | 日常性中的历史层积,社区客厅的活力枢纽 | 仪式感中的渔村记忆,情感容器的叙事序列 |
| 文化隐喻   | 时空折叠的“老站胶囊”                  | 海洋呼吸的“渔村诗篇”                  |
| 用户体验   | 在棚下喝茶、树下小憩中触摸历史         | 在吃饭、聊天中感受海洋的呼吸           |
六、延伸思考:地域性设计的两种路径
棚朋儿模式:适用于历史地段的小规模更新,通过保留历史结构、转译历史语言,让新空间成为旧记忆的“转译者”,适合文化导向的商业或公共项目。  
祯厨娘模式:适用于沿海或渔村地区的空间活化,通过提取地域元素、重塑材料语言,让空间成为地方精神的“载体”,适合餐饮、文化展示等场景。  

两者共同指向一个趋势:未来的地域性设计,将不再是符号的堆砌,而是对“地方如何生活”的深刻回答。无论是用钢结构与混凝土激活铁路记忆,还是用竹编与蚝壳唤醒渔村呼吸,设计的本质都是对“人如何与地方共处”的诗意表达。
如何不发帖就快速得到金币道行
 
在线姜谷粉丝

UID: 1569053

精华: 2
级别: 玉清道君

发帖
169538
金币
510857
道行
20030
原创
768
奖券
359
斑龄
0
道券
30
获奖
0
座驾
设备
摄影级
在线时间: 20959(小时)
注册时间: 2012-06-21
最后登录: 2026-01-28
只看该作者 板凳  发表于: 7小时前
四川棚朋儿餐厅与珠海祯厨娘城市食堂的设计解析,聚焦空间特色与社会价值:

一、棚朋儿餐厅 / UN-GROUP未集建筑(四川彭州)
设计主题:铁路遗址再生 × 川西民俗符号

新旧对话:毗邻1961年老火车站,以倾斜钢构棚顶延伸站台历史记忆,通过轻质楼梯衔接新旧建筑,保留砖墙肌理与工业脉络。
地域符号:提炼“搭棚习俗”为设计语言,1/4场地让给半室外棚区,瓦片檩条暴露形成顶部韵律,斜柱体系与钢梁呈90°角扎根站台。
自然共生:施工中为保护原生梧桐树,调整方案使树冠穿透棚顶生长,形成建筑与自然共生的动态画面。
社区温度:
10米清水混凝土吧台串联站台、公园与室内餐区;
秋千角与悬浮长桌激活社交,成为居民日常聚集地;
绿植渗透建筑缝隙:中庭花园、垂吊绿蔓、卡座花池模糊室内外界限。
社会价值:废弃铁路站点转型为社区客厅,联动湔江小火车公园推动文旅复兴。

二、祯厨娘城市食堂 / 堺工作室(珠海)
设计定位:普惠性社区食堂 × 全龄友好空间

人文关怀:
面向60岁以上长者提供低油盐健康套餐,阶梯补贴减轻就餐负担(60-79岁减4元/餐,80岁以上减5元/餐);
为外卖骑手设置专属优惠套餐,联动公益组织提供“暖新”服务。
适老细节:
防滑地砖+通道警示标识降低行动风险;
靠窗软垫“爱心专座”兼顾采光与休憩需求;
明厨亮灶+营养菜单展板强化食品安全与健康引导。
空间活力:通透布局搭配暖木色调,通过明档厨房传递“家的温度”,成为社区跨代际交流节点。
社会价值:以“政府+公益+企业”模式解决特定群体就餐难题,构建15分钟便民生活圈。

三、设计共鸣:空间作为社会联结器
维度    棚朋儿餐厅    祯厨娘城市食堂
文化锚点    铁路遗产活化+川西民俗转译    广府餐饮文化普惠化
社群激活    文旅游客与居民共享    老人/骑手/市民多元融合
可持续策略    原生植物整合+低干预建造    适老化通用设计+公益可持续
两项目均超越商业空间本质,以设计回应失落空间复兴与城市人文关怀,印证“建筑即社会生态的缩影”。
如何不发帖就快速得到金币道行
 
我有我可以
快速回复
限120 字节
认真回复加分,灌水扣分~
 
上一个 下一个